5 locali in vendita

Roma, Via Renato Cesarini - Eur Tintoretto
€ 435.000
5 locali 5 locali
162 Mq 162 Mq
2 bagni 2 bagni

5 locali in vendita

Roma, Via Renato Cesarini - Eur Tintoretto

Descrizione annuncio

Via Renato Cesarini- Eur Tintoretto

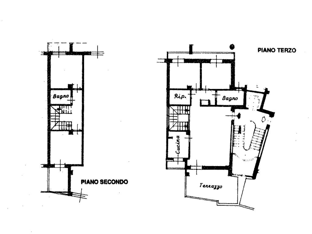
Nel cuore del quartiere EUR Tintoretto, proponiamo in vendita un ampio immobile di 162 mq, distribuito su più livelli.

L'appartamento offre una disposizione spaziosa e funzionale, ideale per chi cerca comfort e praticità. La proprietà si divide su due livelli, entrando al terzo piano troviamo un luminoso soggiorno con accesso al terrazzo, una cucina abitabile con accesso a un bacone di servizio, due camere da letto, un bagno finestrato e un comodo ripostiglio.

Mentre al piano inferiore troviamo altre due camere da letto, un bagno e un balcone.

La zona è ben servita da mezzi pubblici e servizi essenziali, rendendo questa soluzione abitativa perfetta per chi desidera vivere in un contesto urbano senza rinunciare alla tranquillità. L'immobile, di categoria civile, rappresenta un'opportunità interessante per chi cerca una residenza in una delle aree più apprezzate della capitale.

Mostra tutto

Nelle vicinanze

Trasporto pubblico Trasporto pubblico
Laurentina
Laurentina
1,5 Km
EUR Fermi
EUR Fermi
2,2 Km
Basilica San Paolo
Basilica San Paolo
2,7 Km
Grezar/Ossola
Grezar/Ossola
80 m
Ballarin/Grezar
Ballarin/Grezar
190 m
Ricariche auto elettriche Ricariche auto elettriche
ADS TotalERG Tintoretto | EnelX
490 m
Roma Martini | Enel X
890 m
Metro Laurentina | EnelX
1,5 Km
EnelX EVA+ Viale dell'Arte 19
1,7 Km
Eneldrive Douhet
1,8 Km
Scuole Scuole
I.C. Poggiali Spizzichino
580 m
Scuola Elementare "Carlo Alberto Dalla Chiesa" - Succursale
690 m
Scuola Media Carlo "Alberto Dalla Chiesa" - Centrale
900 m
Scuola dell'infanzia Padre Lais + Istituto comprensivo "G. Montezemolo"
1,0 Km
Scuola Primaria Europa
1,0 Km
Farmacia Farmacia
Farmacia
780 m
Farmacia Mealli
1,0 Km
Farmacia Tre Fontane
1,1 Km
Farmacia Poggio Ameno
1,2 Km
Farmacia Daniele
1,5 Km
Ospedali Ospedali
Studio Odontoiatrico Dominici
860 m
Fondazione Santa Lucia
1,7 Km
Nuova Clinica Annunziatella
2,4 Km
Sant'eugenio
2,5 Km
Ospedale CTO Andrea Alesini
2,6 Km
Supermercati Supermercati
Todis
400 m
Supermercati
540 m
Panorama
780 m
Pam Panorama
870 m
Pewex
1,1 Km
Negozi Negozi
La Biribaula - Mercatino usato bimbi
1,3 Km
Mamma che Pane
1,4 Km
Friend's Alimentari
1,5 Km
Carrefour Express
1,5 Km
Panificio Nebbia
1,5 Km
Bar Bar
Re del Gelato
1,2 Km
Bar dell'Accademia
1,2 Km
Le Tre Isole
1,6 Km
Bim Bum Bar
1,6 Km
London Bar
1,6 Km
Ristoranti Ristoranti
Food and drinks
490 m
La Fraschetta di Grotta Perfetta
860 m
'O Masto
1,1 Km
Di fronte al centodieci
1,1 Km
Hostaria 110
1,1 Km
Mostra tutto

Caratteristiche

Rif.:
61155528
Piano:
Su più livelli di 8 con ascensore
Totale piani:
8
Balconi:
1
Terrazzi:
1
Camere da letto:
4
Mostra tutto
Prezzo Prezzo
€ 435.000
Rata mutuo Rata mutuo
€ 2.067 / mese
Proponi il tuo prezzoProponi il tuo prezzo

Classe Energetica

G
G
G
G
G
G
G
G
G
EP globale non rinnovabile:
155.00 kW h/m² anno
EP globale rinnovabile:
155.00 kW h/m² anno
EP invernale del fabbricato:
EP estiva del fabbricato:
Anno di costruzione:
1997
Riscaldamento:
Autonomo
Tipo impianto:
A radiatori
Tipo alimentazione:
Metano

Ti interessa visionare l'immobile?

Fissa un appuntamento  Fissa un appuntamento

Richiedi informazioni

Clicca su Leggi per aprire l'informativa
* Questi campi sono obbligatori

Calcola il tuo mutuo

Semplice e senza impegno
Anticipo

( % )
Mutuo

( % )

pochi semplici passi

inserisci i tuoi dati
Questionario completato
Grazie per aver richiesto un appuntamento senza impegno con un nostro Consulente del Credito e Assicurativo.

Hai inserito correttamente tutti i dati necessari e a breve riceverai una e-mail con un link da convalidare per inviare i tuoi dati.
Affiliato
Nuova Serafico Srl
Via Alessio Baldovinetti, 75 00142 Roma (RM)

Il nostro staff


  • Gaetano Del Gaudio
    Responsabile

  • Antonio D'Onofrio
    Collaboratore

  • Niubel Lahera
    Affiliata

  • Federica Riccio
    Coordinatrice

  • Igor Sosulski
    Collaboratore

  • Daniele Venale
    Collaboratore
Via Alessio Baldovinetti, 75 00142 Roma (RM)
Zona: Eur Serafico-Grottaperfetta-Fotografia
Mostra su mappa
Orari: Lunedì - Venerdì 9-13 / 15.30-19.30 Sabato 9-13
Affiliato
Nuova Serafico Srl
Via Alessio Baldovinetti, 75 00142 Roma (RM)

2026 Tecnocasa Franchising S.p.A. - P. IVA 08365160152 - Via Monte Bianco 60/A 20089 Rozzano (MI). Ogni agenzia ha un proprio titolare ed è autonoma. Privacy policy | Policy utilizzo | Cookie policy